Оренда
Повернутись
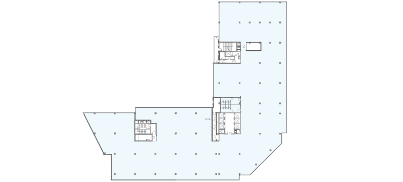
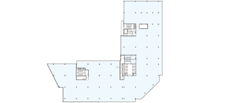
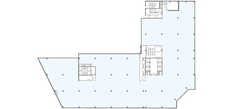
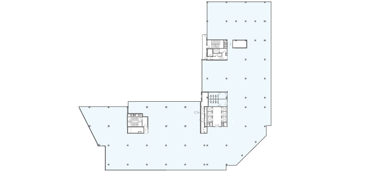
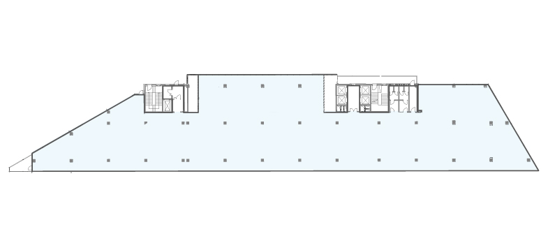
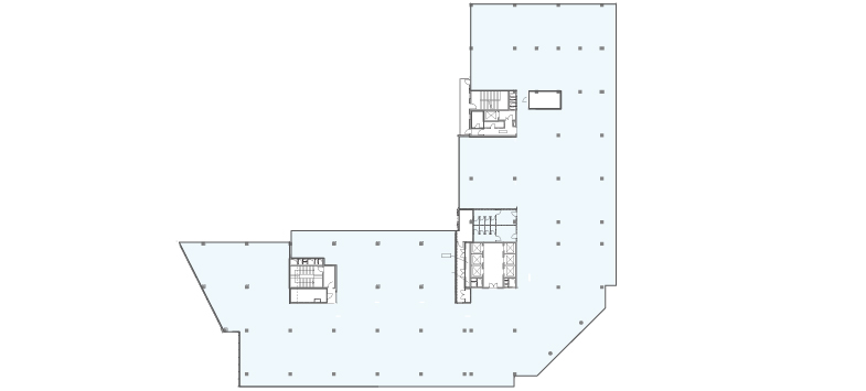
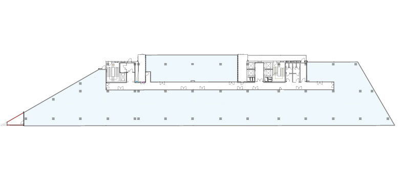
ПРИМІЩЕННЯ ЗДАЮТЬСЯ В ОРЕНДУ БЕЗ ОЗДОБЛЕННЯ, У НАСТУПНОМУ СТАНІ:
- Підлога – бетонна плита перекриття (є можливість як влаштування стяжки, так і встановлення фальш-підлоги)
- Стеля – бетонна плита перекриття (чистова відстань між плитами перекриття 4,0 м)
- Стіни – відкрите планування, зовнішні стіни – фасадні скляні та алюмінієві системи; внутрішні стіни – бетон, керамзитобетонна кладка
- Вентиляція та кондиціонування – виконані вводи до приміщення, без кінцевих приладів
- Опалення – виконане розведення по підлозі, встановлені радіатори з терморегуляторами
- Пожежна система – змонтоване водяне пожежогасіння, датчики димовидалення, динаміки сповіщення, встановлені та закомплектовані пожежні гідранти
Відкрите планування приміщень дозволяє облаштувати будь-який офіс з урахуванням потреб кожного конкретного орендаря. Тут Ви маєте можливість обрати вільне приміщення потрібної Вам площі (від 165 м2) на одному з поверхів офісного центру та залишити заявку на його оренду!
З ПИТАНЬ ОРЕНДИ ПРИМIЩЕНЬ:
+38 (044) 235-00-25
Залишити заявку
або залиште заявку
на оренду на сайті
на оренду на сайті



